The Why Factory
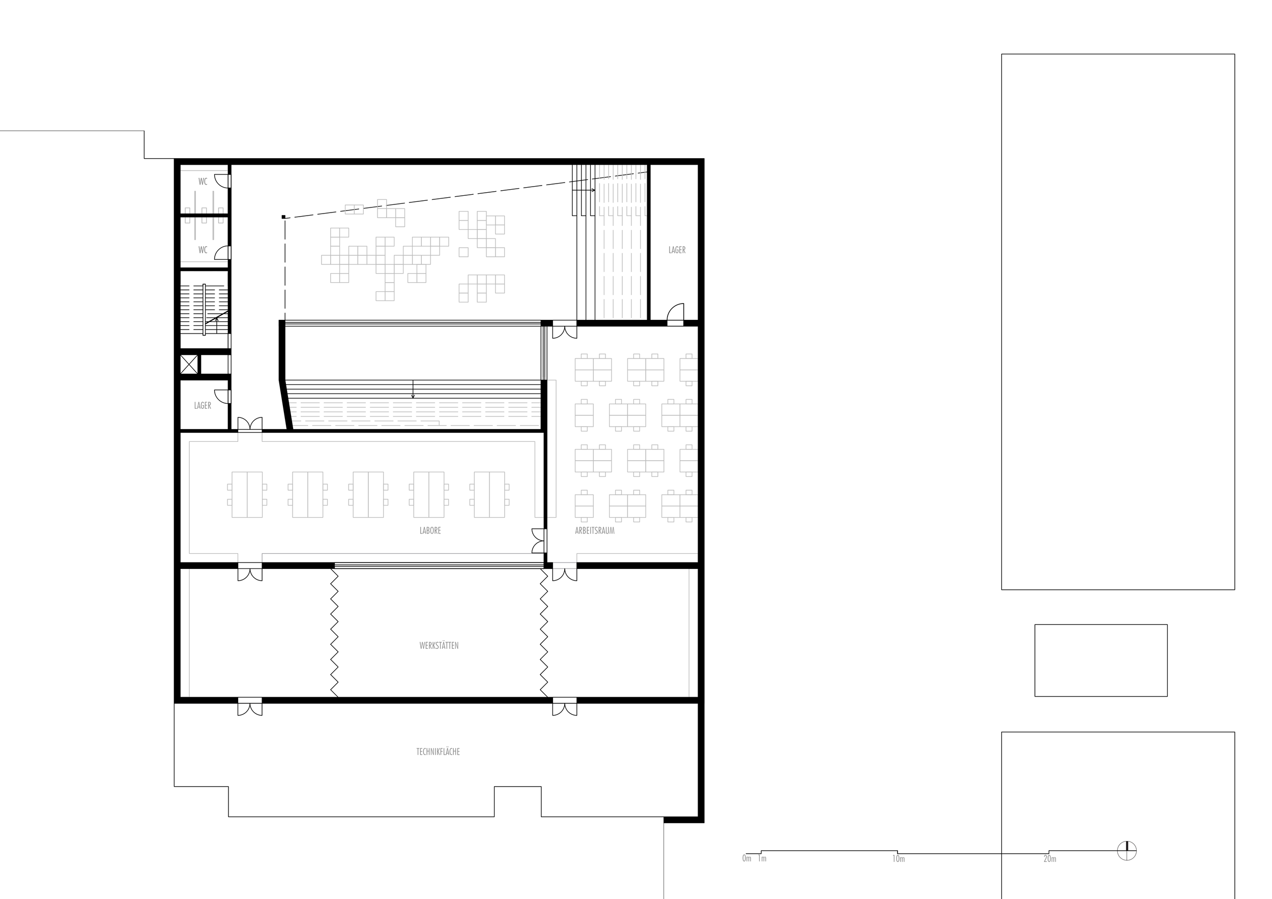
The aim of this project was to create a new campus of the Th Rosenheim located in the city center. This new addition to the university is supposed to accommodate the creative studies, such as architecture, interior architecture and design. Light filled patios, green terraces and a light and transparent exterior characterize this building.






© Nicolas Strauch & Kimberly Schwieder & Franziska Frank & Paulina Keinath